SARRAZINE
ACCUEIL
STUDIO
SERVICES
PROJETS
MOBILIER
CONTACT
Votre navigateur ne supporte pas la vidéo HTML5.
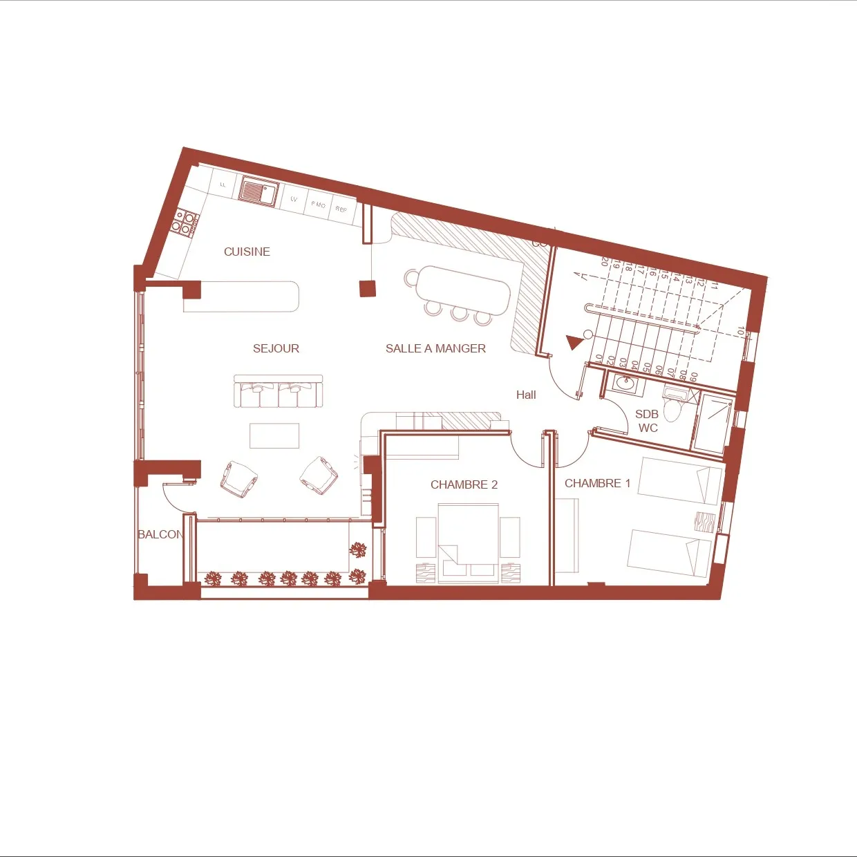
PROMOTION IMMOBILIÈRE BELA
Résidentiel
Hydra, Algérie
Projet précédent
Projet suivant